Le Foyer Catholique Européen

2022

Un lieu de rencontre et de recueillement

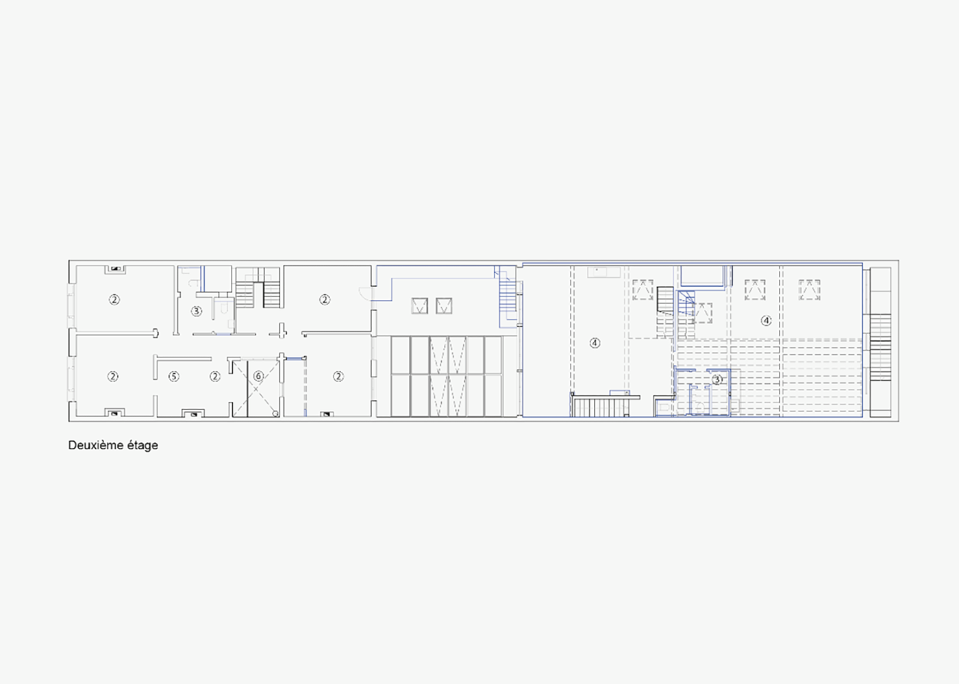
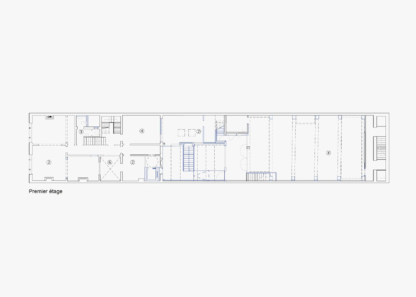
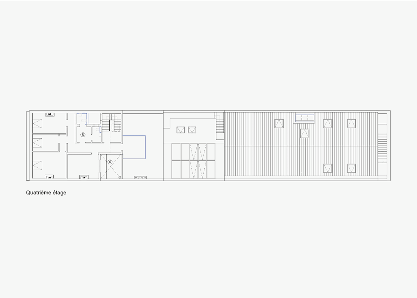
Le site du Foyer Catholique Européen, qui se trouve dans la Commune  d’Etterbeek, a été rénové de manière assez importante entre 2020 et 2022. Les travaux ont permis de réunir deux parties séparées sur la même parcelle : un bâtiment à l’avant (maison en style classique du début 1900) et une partie à l’arrière datant 1920. La liaison a été réalisée à travers une nouvelle grande verrière. Des nouveaux espaces ont été créés à chaque étage et les travaux d’isolation ont permis d’utiliser au mieux l’espace des combles. Le nouvel escalier central sous la verrière relie les espaces des étages principaux. Un ascenseur nécessaire pour les personnes à mobilité réduite a été inséré près de l’escalier.

L’ensemble comprend une chapelle décorée avec une œuvre artistique de renom, une salle polyvalente et d’autres salles qui servent de lieu de rencontre et d’activité de catéchèse, mais également pour activités privées et associatives.

Localisation : Etterbeek, Bruxelles
Timing : 2020/2022
Superficie : 1000
projet précédent